宮崎県宮崎市吉村町江田原甲208-21
0985-31-1399 info@totalhomes.jp

宮崎市清武 清武今泉貸家 新築平屋 オール電化 外観がオシャレで使いやすい間取りです!敷地広々

住所: 宮崎市清武町今泉 Location:
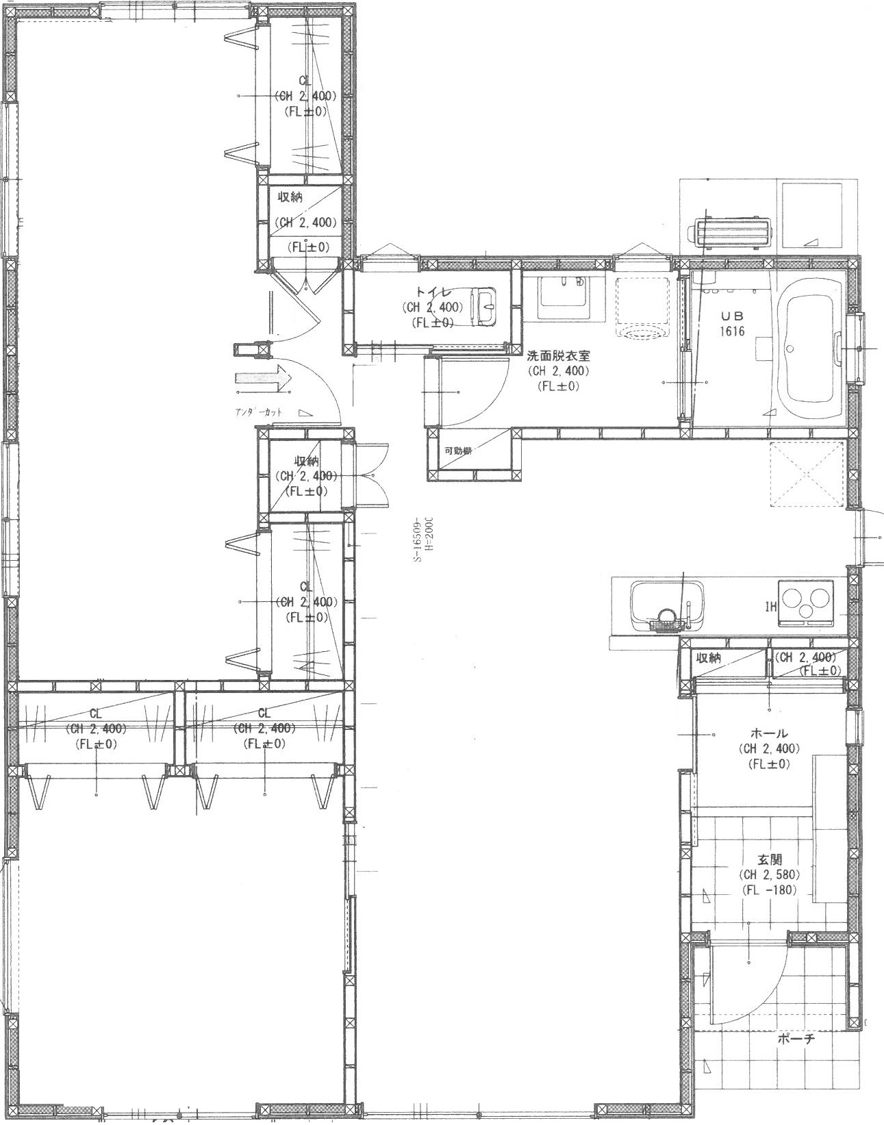
  • 3LDK 貸家 間取
  • 2台 縦列 Parking
¥138,000 / 衛生管理費550円/礼金1ヶ月
  • 賃貸

付加情報

  • Parking : 2台 縦列
  • 広さ : 89.43 m2
  • 間取 : 3LDK 貸家

Property Description

宮崎市清武町に新築平屋貸家が出ました!外観は黒をベースにしたオシャレな建物です。オール電化、IHコンロ3口のシステムキッチンです。トイレはウォシュレット付き、シャワー付き独立洗面台完備。収納スペースが多く、荷物も整理しやすく、使いやすい3LDKの間取りになっています。自然に囲まれた静かな住宅街にあります。駐車場は縦列駐車で2台駐車出来ます。10月中旬から入居可

詳細はこちら

動画(YoutubeのURL)

Contact For Property

  • 担当者名:株式会社トータル・ホームズ
  • Phone:0985-31-1399
  • Email:info@totalhomes.jp
  • 住所:宮崎市吉村町